О сайте Poney Ronny
-
-
-
-
-
-
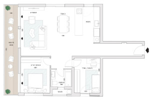
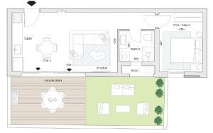
Новый проект, Опубликовано 03/02/2026
₪4.560.000
С выходом в сад 2 комнаты, 51 м²
Tel Aviv, Lev Tel-Aviv
-
-
-
-
-
-
-











Права на недвижимость
Faire son crédit en France ou en Israël ?






