- Aggiunto il 11/01/2026
- VU 60 volte questo mese
Progetto di qualità
PROGRAMNEUF a Ashdod, Shimon Peres Visualizza sulla mappa
₪3.140.000 | $984.390 | €855.650 23.088₪ / mq
Appartamento 4 stanze, 136 mq ESCLUSIVA
Condividi questo annuncio
Disponibile anche in:
Inizio costruzione : 31/05/2026 | Consegna : 31/05/2030-
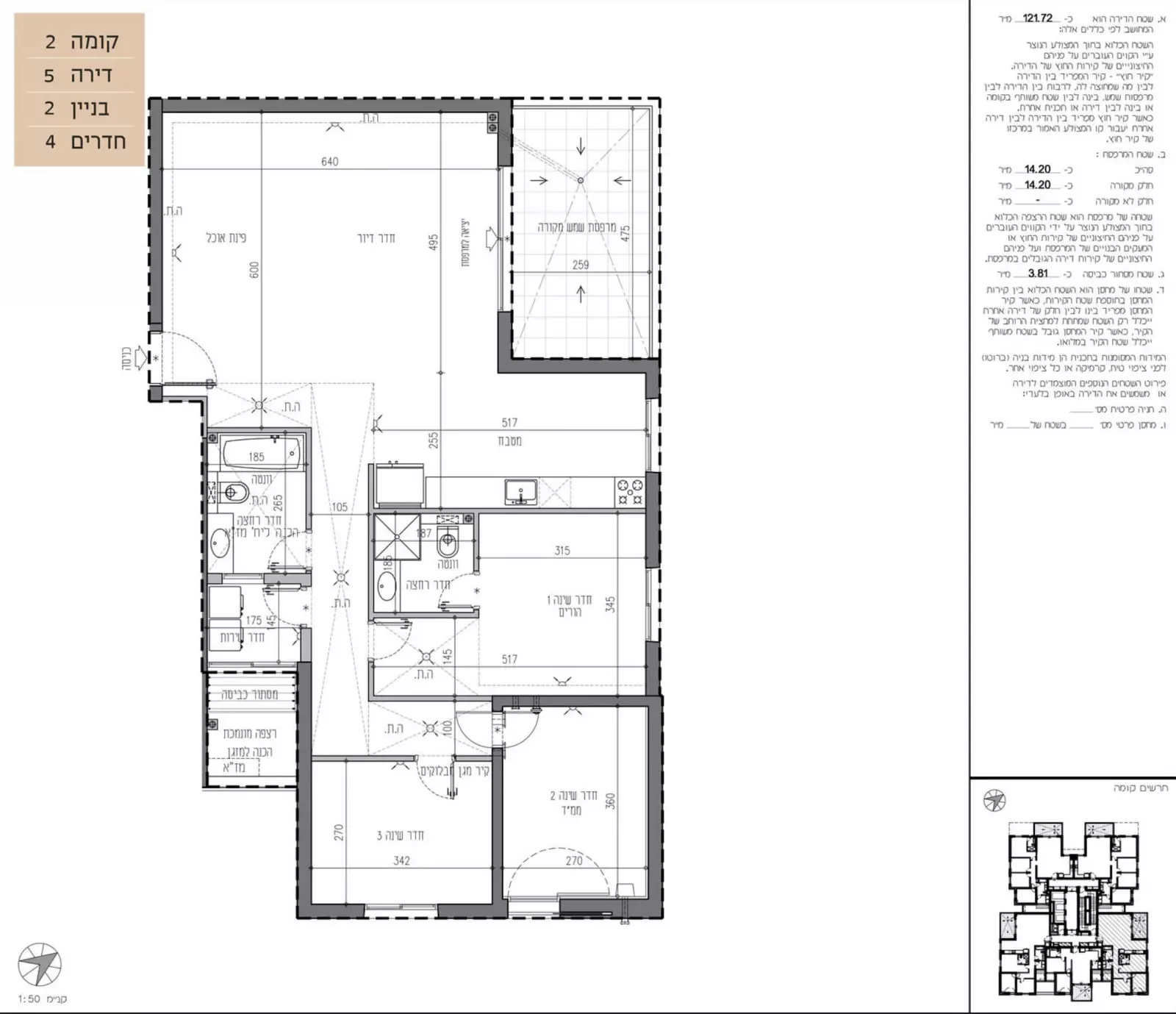
Appartamento 5stanze
₪3.400.000
Caratteristiche
Descrizione dell'immobile
Siamo lieti di presentarvi il vostro futuro appartamento, situato nel nuovissimo quartiere Shimon Peres ad Ashdod.
Offerte eccezionali e condizioni di pagamento vantaggiose:
Appartamenti con 4 locali
???? Superficie: 122 m² abitabili + 14 m² di terrazza
???? Prezzo a partire da 3.140.000 ? (? €785.000)
Appartamenti con 5 locali
???? Superficie: 131 m² abitabili + 14 m² di terrazza
???? Prezzo a partire da 3.400.000 ? (? €850.000)
Condizioni di pagamento molto vantaggiose:
7% alla firma
8% all'inizio dei lavori
85% alla consegna
Senza indicizzazione!
Prezzo bloccato oggi per consegna tra 5 anni!
Specifiche tecniche – Appartamenti da 4 e 5 locali
Costruzione:
Edilizia green secondo norma 5281
Facciata in pietra naturale o Porcellanosa
Isolamento termico e acustico ad alte prestazioni
Soffitti alti nelle aree comuni
Ascensore intelligente con illuminazione di design
Citofono video con schermo a colori
Ampio ingresso, locale tecnico e deposito bici
Predisposizione per aria condizionata canalizzata
Porta blindata all’ingresso, porte interne di alta qualità
Impianto elettrico intelligente
Ripostiglio privato per ogni unità
Interni degli appartamenti:
Architettura contemporanea e luminosa
Piastrelle Porcellanosa di alta gamma (100x100 / 80x80 cm)
Ampi balconi con parapetti in vetro di design
Predisposizione per jacuzzi e cucina esterna sul balcone (secondo il modello)
Prese TV e RJ45 in tutte le camere
Persiane elettriche con interruttori di design
Aria condizionata canalizzata preinstallata
Elettricità trifase 3x25A
Bagni e sanitari:
Piastrelle moderne in tutti i locali umidi
Mobili sospesi + specchio nella suite matrimoniale
Doppio lavabo nel bagno dei bambini (secondo appartamento)
WC sospesi in tutti i bagni
Aeratori installati in ogni bagno
Cucina:
Cucina di alta qualità con isola centrale
Lavello ad incasso con rubinetto di design
Spazio per lavastoviglie, forno e frigorifero doppio
Piano di lavoro in quarzo o granito
Numerosi spazi di stoccaggio
Predisposizione per colonnina di ricarica per auto elettrica
Ashdod è una città in forte espansione con grande potenziale di valorizzazione.
Il quartiere Shimon Peres comprenderà:
Circa 3.600 nuove abitazioni
Zone commerciali dinamiche
Istituzioni pubbliche moderne
Ampi spazi verdi per una qualità di vita ottimale
Questo sviluppo genererà nuovi posti di lavoro e risponderà alla crescente domanda abitativa.
Una posizione strategica:
A pochi passi dal campus universitario, dal parco tecnologico e dalla stazione ferroviaria – un ambiente di vita moderno, dinamico e connesso.
: 1
🧑💼 Annuncio pubblicato da Serge Touitou
🏢 Questo annuncio è proposto da Tivour Building
📍 Posizione dell'agenzia : Ashdod
🏷️ Riferimento della proprietà : 210-IBL-2098
Immobili simili nelle vicinanze
-
PROGRAMNEUF, Pubblicato il 21/01/2026₪4.600.000
Appartamento 4 stanze, 120 mq
Ashdod, Marina -
PROGRAMNEUF, Pubblicato il 11/01/2026₪2.570.000
Appartamento 4 stanze, 100 mq
Ashdod, Alef -
PROGRAMNEUF, Pubblicato il 11/01/2026₪7.500.000
Livello del giardino 4 stanze, 262 mq
Ashdod, Marina -
PROGRAMNEUF, Pubblicato il 20/07/2024₪4.500.000
Appartamento 4 stanze, 132 mq
Ashdod, Marina -
PROGRAMNEUF, Pubblicato il 20/07/2024₪4.500.000
Appartamento 4 stanze, 132 mq
Ashdod, Marina -
PROGRAMNEUF, Pubblicato il 06/05/2024₪1.850.000
Appartamento 4 stanze, 100 mq
Ashdod, City -
PROGRAMNEUF, Pubblicato il 06/05/2024$N/C
Appartamento 4 stanze, 126 mq
Ashdod, Alef
Immobili venduti nel quartiere
-
Venduto il 03/07/2025 PROGRAMNEUF, Pubblicato il 03/07/2025₪3.400.000
Appartamento 5 stanze, 145 mq
Ashdod, Shimon Peres -
Venduto il 03/07/2025 PROGRAMNEUF, Pubblicato il 03/07/2025₪3.140.000
Appartamento 4 stanze, 136 mq
Ashdod, Shimon Peres -
Venduto il 23/04/2025 PROGRAMNEUF, Pubblicato il 31/03/2025₪3.420.000
Appartamento 5 stanze, 151 mq
Ashdod, Shimon Peres -
Venduto il 23/04/2025 PROGRAMNEUF, Pubblicato il 31/03/2025₪3.110.000
Appartamento 4 stanze, 127 mq
Ashdod, Shimon Peres

Faire son crédit en France ou en Israël ?






