- Adicionado em 18/01/2026
- VU 92 vezes este mês
Lower price !
Venda para Jerusalém, Kiryat Moshe Ver no mapa
₪2.090.000 | $655.215 | €569.525 44.468₪ / m²
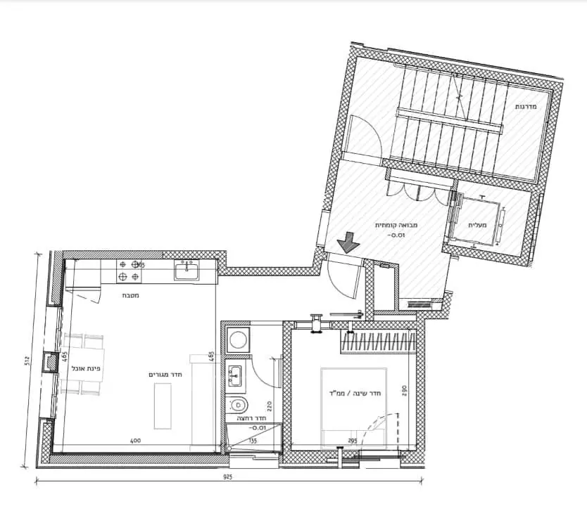
Apartamento 2 cômodos, 47 m² EXCLUSIVIDADE
Compartilhe este anúncio
Comodidades
Vista desobstruída
Porão
Elevador
Ar-condicionado
2 banheiros
Sala de segurança (Mamad)
Descrição do imóvel
2cômodos
47 m²
: 4
: Sul,Leste
: 4
: Sul,Leste
🧑💼 Anúncio publicado por Hadassa Schiffers
🏢 Este anúncio é oferecido por Takam
📍 Localização da agência : Jerusalém
🏷️ Referência da propriedade : 606-IBL-28
Imóveis semelhantes próximos
-
Venda, Publicado em 20/01/2026₪1.870.000
Apartamento 2 cômodos, 40 m²
Jerusalém, Centro da cidade -
Venda, Publicado em 18/01/2026₪4.750.000
Apartamento 2 cômodos, 100 m²
Jerusalém, Moshava Germanit -
Venda, Publicado em 05/01/2026₪3.000.000
Apartamento 2 cômodos, 58 m²
Jerusalém, Centro da cidade -
Venda, Publicado em 06/12/2025₪2.490.000
Apartamento 2 cômodos, 45 m²
Jerusalém, Centro da cidade -
Venda, Publicado em 21/10/2025₪3.200.000
Apartamento 2 cômodos, 47 m²
Jerusalém, Centro da cidade

Faire son crédit en France ou en Israël ?






